Klimaneutrales Leuchtturmprojekt
Das Ziel des Entwurfs ist es ein Gebäude zu errichten das Energie nicht nur für sich selbst, sondern auch für die Umgebung produziert. In diesem Sinne wird die Architektur hier nicht nur ein optimierter Speicher kollektiven Wissens, sondern auch ein Energie-Reservoir für die Gesellschaft und die Stadt. Das Bücherdepot wird zum klimaneutralen Leuchtturmprojekt und produziert Wissen über das Bauen für die Zukunft.
Der Entwurfs- und Planungsprozess ist als transdisziplinärer Wissenstransfer konzipiert: Architektur, Statik, Energiedesign, (Archiv-, Bau-)Logistik und Auftraggeber/in kooperieren an der optimierten Lösung dessen Ziel nicht nur die Lagerung kollektiven Wissens ist, sondern insbesondere die Balance zwischen ökologisch-ökonomisch optimierter Kreislaufwirtschaft uns Energieproduktion und -speicherung anstrebt. Eine wissenschaftliche Projektbegleitung (FFG Projekt) ist angedacht, um den Wissenstransfer für andere Bauaufgaben zu ermöglichen.
Architektur, Städtebau und Funktion
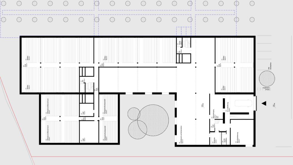
Dem Entwurf liegt ein für das Archiv optimierter streifenförmiger Raster mit Mittelgangerschliessung zugrunde, der sich über das komplette Grundstück ausdehnt. Im ersten Bauabschnitt wird das Buchdepot entlang von zwei Streifen an der östlichen Grundstücksgrenze realisiert. Zwei weitere Streifen stehen für die Erweiterung Richtung Westen zur Verfügung.
Das Depot wird in Fertigteilbauweise mit massiver Aussenwand realisiert. Das Dach wird für eine PV-Anlage genutzt. Die massiven, weiss gestrichenen Aussenwände werden durch bodengebundene Pflanzen bewachsen. Die Aufenthaltsräume (Büros, Lesezone, Bereitschaftsraum) sind als Pavilion (Holz) am Dach der Sortierstation konzipiert und orientieren sich rund um introvertierte, begrünte Dachterrassen.
Projektdaten
Auftraggeber: BIG Bundesimmobiliengesellschaft
Projektstart: 05/2022
Projektstatus: abgeschlossen
Architektur: Univ. Prof. Arch DI, PhD Andreas Rumpfhuber, EXPANDED DESIGN
Weitere Informationen
Tragwerk
Die Konstruktion des Gebäudes wird hinsichtlich Wirtschaftlichkeit, Ressourcen- und Tragwerkseffizienz optimiert. Zum Einsatz kommt eine Fertigteilbauweise in Gradientenbeton. Diese Technologie ermöglicht es, Beton dort zu verdichten, wo er entsprechende Tragfähigkeit entwickeln muss – also z.B. in der Druckzone des Deckenelementes oder Unterzuges, bzw. an der Wandinnenseite des Fassadenelementes. In den anderen Bereichen kann er durch stufenloses Anordnen hochporöser Anteile auch andere Aufgaben – wie eine Wärmedämmfunktion- übernehmen.
Die statischen Elemente sind damit Deckenelemente auf Unterzügen in Fertigteilbauweise, die auf Wänden bzw. Punktstützen, die ebenfalls vorgefertigt sind, aufgelagert sind. Die aussteifende Funktion übernehmen die Wandanteile des Gebäudes. Die Fundierung des Gebäudes erfolgt unter den Außenwänden und Punktstützen mit Kleinbohrpfählen gemäß Bodengutachten.
Energiedesign
Das zu Großteil opake, sehr massive Gebäude wird über Bauteil aktivierte Zwischendecken beheizt als auch minimal gekühlt. Die Beleuchtung erfolgt über Bewegungsmelder und hocheffiziente LED Systeme. Die dafür nötige thermische Energie wird dem Grundwasser entzogen, eine Wasser-Wasser-Wärmepumpe versorgt das Niedertemperatursystem im Winter mit Wärme. Thermische Spitzenlasten im Winter werden über die Fernwärme abgefangen. Eine zentrale, mechanische Lüftungsanlage mit Wärmerückgewinnung be- und entlüftet das Gebäude Sensor gesteuert den Anforderungen entsprechend minimal. Die Büroflächen sind mit hochwertigen Dreischeiben Verglasungen und außenliegenden Sonnenschutz für maximale Behaglichkeit ausgestattet.
Die vollflächig mit PV Systemen belegten Dachflächen decken den Gesamtenergiebedarf des Nullenergie Gebäudes. Der elektrische Fuhrpark dient auch als Stromspeicher für den regenerativ erzeugten Solarstrom. Das minimalistisch Energiekonzept sorgt für Nachhaltigkeit bei gleichzeitig niedrigen Investitionskosten.





