Neubau eines modernen Einfamilienhaus
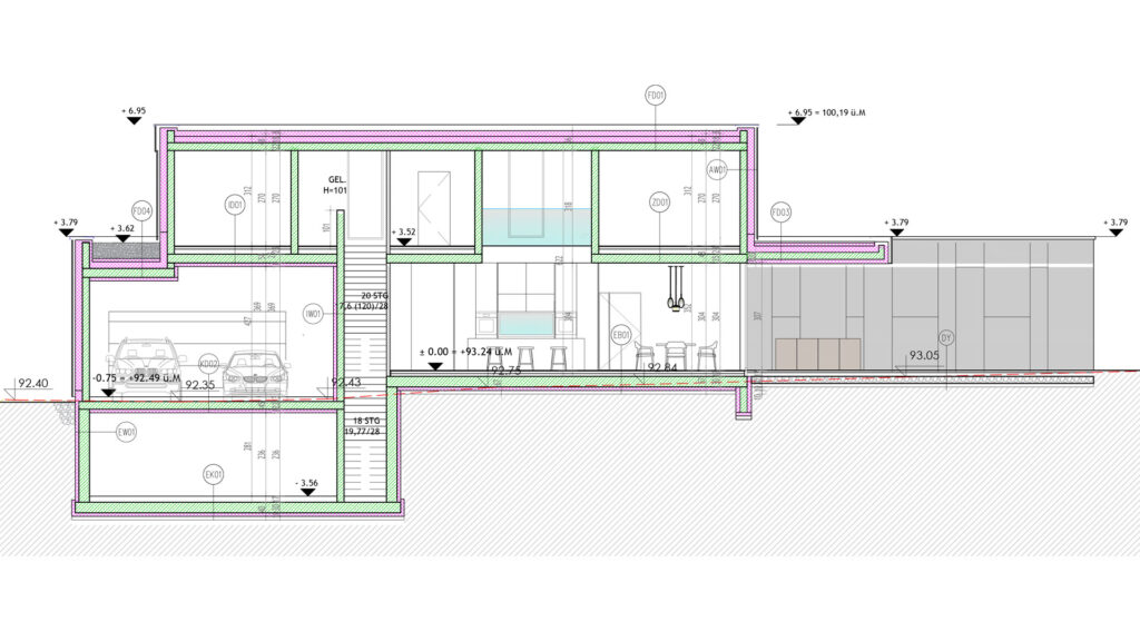
Modernes und energieoptimiertes Einfamiliehaus. Die Energieversorgung erfolgt über eine Sole-Wasser-Wärmepumpe mit 3x100m Tiefensonden. Die thermisch aktive Betondecke und Bodenestrich sorgen ganzjährig für eine behagliches Klima. Die Niedertemperatursyysteme ermöglichen eine freie Kühlung im Sommer und reduzieren so den Energiebedarf auf ein Minimum. Eine PV Anlage auf dem Dach liefert nachhaltig erzeugten Strom.
Gebäudesimulation, Gebäudetechnikplanung
Die Gebäudehülle wurde schon in der Planungsphase energetisch optimiert und deren Auswirkung auf das Raumklima analysiert. Unsere Leistungen: Gebäudetechnikplanung, Gebäudesimulation, Ausschreibung
Projektdaten
Auftraggeber: Familie M
Projektstart: 01/2023
Projektstatus: Umsetzungsphase
Architektur & Rendering: Marcel Eberharter interdisziplinäre GmbH


