Energiekonzept AHS Baden
Die thermische Energieversorgung des Gebäudes erfolgt über das Grundwasser. Im Sommer wird direkt mit Brunnenwasser gekühlt. Im Winter erzeugt eine Wasser-Wasser-Wärmepumpen Wärme für die Heizung. Das Warmwasser wird zentral über eine Booster Wärmepumpe erzeugt. Der Sprinklertank dient zusätzlich als thermischer Kurzzeitspeicher und wird zur Reduktion der Spitzenlasten im Sommer verwendet. Spitzenlasten im Winter werden über einen Fernwärmeanschluss abgedeckt. Optional deckt eine thermische Solaranlage den Warmwasserbedarf des Gebäudes im Sommer.
Energieversorgung
Die begrünten Dächer der Gebäude werden mit einer nach Süden orientierten PV-Anlage mit rund 200kWp belegt. Damit können über das Jahr gesehen 100% des Gesamtenergiebedarfs der Gebäude erzeugt werden. Eine Ergänzung des Systems mit einem Stromspeicher ist zur Steigerung des solaren Deckungsgrades möglich und sinnvoll.
Projektdaten
Auftraggeber: BIG Bundesimmobiliengesellschaft
Projektstart: 07/2023
Projektstatus: abgeschlossen
Architektur: LORENZ ATELIERS
Weitere Informationen
Technisches Konzept des Gebäudes
Alle Räume werden über eine thermisch aktivierte Betondecke geheizt und gekühlt. Räume mit erhöhten thermischen Anforderungen erhalten schnell reagierende Heiz- und Kühlsysteme zur Abdeckung zusätzlicher Heiz- oder Kühllasten. Thermisch aktive Oberflächen sorgen für hohe Behaglichkeit bei gleichzeitig minimalem Energieeinsatz.
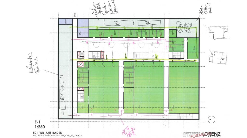
Das Lüftungskonzept unterscheidet sich in den drei Gebäudeteilen – Klassenzimmer, Sonderklassenzimmer mit Atrium und Eingangsbereich sowie den Turnsälen im Untergeschoss.
Die Klassenzimmer werden über die Fassade mit Frischluft versorgt. Die Abluft strömt über schallgedämmte Überströmöffnungen in die Gänge und wird dort punktuell über zwei Schächte zum Dach geführt. Eine Abluftanlage mit Wärmerückgewinnung (KVS) führt die Wärme zurück ins zentrale Wärmesystem. Das System vereint eine Luftführung ohne zusätzliche Kanäle mit einer effizienten Wärmerückgewinnung.
Der Trakt mit den Sonderklassenzimmern nutzt das Atrium zur Frischluftzufuhr. Im Winter und heißen Sommertagen wird die Zuluft bodennah und vorkonditioniert mechanisch in Atrium geblasen. Die Abluft wird über Kanäle zu einem zentralen Lüftungsgerät mit Wärmerückgewinnung geführt und verhindert so die Ausbreitung von Gerüchen aus den Klassenzimmern im Gebäude. In der Übergangszeit wird das Atrium natürlich gelüftet. Die Klassenzimmer müssen in diesem Fall nur noch mechanisch entlüftet werden.
Die Frischluftversorgung der Turnsäle erfolgt, bodennah und mechanisch über die Erschließungsgänge. Im Winter und an heißen Sommertagen kann die Abluft mechanisch mit WRG in Deckennähe abgesaugt werden. In den Übergangszeiten ist eine natürliche Lüftung der Turnsäle über die Fenster oder ein hybrider Betrieb möglich.
Zur Stärkung der Klima Resilienz werden die äußeren Kühllasten durch konsequente, außenliegende Verschattungssysteme auf ein Minimum reduziert. Die Gebäudehülle auf Passivhausniveau minimiert die Transmissions- und Lüftungsverluste. Eine Wärmerückgewinnung und Aufbereitung des Grauwassers kann den Energiebedarf für Warmwasser und den Wasserbedarf des Gebäudes halbieren.





